Australia

16 Millewa Road, Southern River,WA 6110

# Location

Description

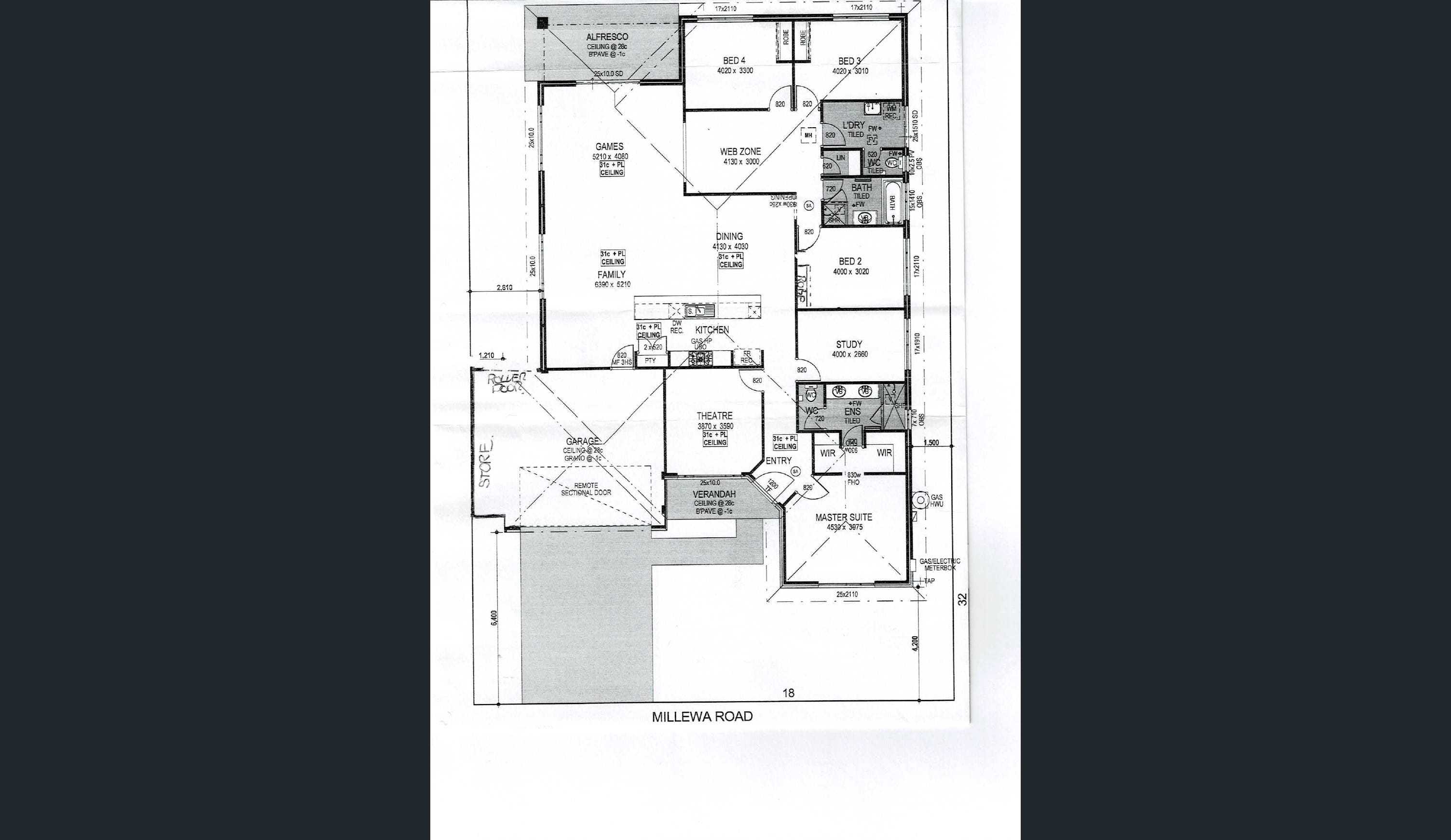
4-Bedroom, 2-Bathroom Home With Office/5th Bedroom on 576sqm Block - Low Maintenance Living!!
16 MILLEWA ROAD, SOUTHERN RIVER
** UNDER OFFER BY TEAM SUTRISNO **

Nestled in a fantastic location near The Vale Shopping Centre, Woolworths Southern River, Southern Grove Primary School, Excelsior Primary School, and plenty of parks, this stunning 4-bedroom, 2-bathroom house offers a spacious and low-maintenance lifestyle. With excellent public transportation links nearby, convenience is at your doorstep.

As you step inside, you'll be greeted by low-maintenance flooring at the entrance and a large metal security screen door for peace of mind. Reverse cycle ducted air conditioning ensures comfort throughout the home.

The open-plan living, kitchen, and meals area is perfect for family living, featuring a 5-burner gas cooktop, double sink, double-door built-in pantry, and plenty of cupboard space. The living room includes a shopper's entrance and sliding access to the backyard, while a dedicated theatre room offers a space for entertainment. There's also a versatile study or children's play area.

The master bedroom is a true retreat, with double-sided walk-in robes and an ensuite featuring a double vanity, floor-to-ceiling tiles in the shower, and a toilet. Three additional bedrooms are all fitted with mirrored sliding built-in robes, while the main bathroom boasts a bathtub and a floor-to-ceiling tiled shower.

An office or 5th bedroom offers flexibility for growing families or home-based work, and the laundry features a walk-in robe with access to the backyard.

Outside, enjoy a large alfresco area with low-maintenance flooring and artificial grass, providing plenty of space for outdoor entertaining and relaxation. The double car garage ensures ample parking space, and the property has been freshly painted inside and out with brand-new floorboards for a modern finish.

This is a home that truly offers comfort, convenience, and a flexible layout-don't miss out on this wonderful opportunity!

Contact Vicktor Sutrisno or Abhinav Reddy to register your interest!

Disclaimer: The particulars of this listing have been prepared for advertising and marketing purposes only. We have made every effort to ensure the information is reliable and accurate, however, clients must carry out their own independent due diligence to ensure the information provided is correct and meets their expectations.

View More #

Location

  • Contact the agency

    To request an inspection

  • # Call # Email

# Report Listing

Looking for a property?

  • Top listings
  • Investment
  • Development
  • Personal home
  • Price reports
  • Suburb reports

Do you own a property?

  • Place a free listing
  • Services for private advertisers
  • Guide to selling your home
  • Insurance
  • Improve the photos of your listing
  • Value your property for free

Are you a real estate proffesional?

  • Publish your agencies properties
  • Already a client? Log into your account
  • Advertising on Australian Real Estate
  • Australian Real Estate data technology for property insights
  • Real Estate courses