Australia

Suit Buyers $1.25M And Above

10 Greenscape Road, Southern River, WA 6110

# Location

Description

Welcome to your dream home!
Nestled in the heart of Southern River, this large family residence offers a perfect blend of comfort, style, and functionality, making it ideal for families seeking both space and modern living.
Perfectly located within the extremely popular Harrisdale High School Zone, and moments to Bletchley Park Primary and Providence Christian College, excellent public transport, parks and shopping centres.
Who needs to go on holidays! Bring on Summer, you will love entertaining your family and friends in the lovely Bali inspired rear yard complete with a big salt water pool!
Features of the property include:
Indoors
- Double door entry
- Spacious passageway
- Theatre/formal lounge
- Master suite downstairs with his & hers walk-in robes and ensuite
- Powder room
- Open plan meals and family room
- Modern kitchen with brand new oven, 900mm gas cooktop, dishwasher and double sink
- Laundry off kitchen with shoppers entrance to garage
- Three spacious minor bedrooms up-stairs, two with walk-in robes, third with large built-in robe
- Huge kids upstairs activity/lounge
- Upstairs family bathroom with separate bath and shower
- Excellent storage throughout
- Reverse cycle air-con with multi zones
- Brand new carpets throughout
- Freshly painted
Outdoors
- 600sqm block
- Salt water pool
- Enormous patio/alfreso
- Triple garage, providing ample space for vehicles and additional storage
- Solar panels
- Reticulated gardens, perfect for kids and pets to play
Don't miss your chance to own this beautiful home! Contact us today for more information or to schedule a private viewing. Your dream lifestyle awaits at 10 Greenscape Road, Southern River!

View More #

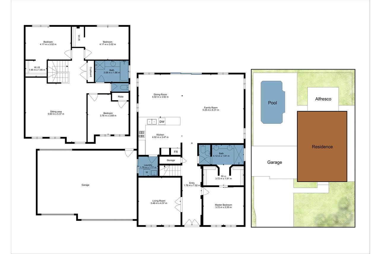
Floor Plans

Location

  • Contact the agency

    To request an inspection

  • # Call # Email

Linda Hickmott

Agent Name

# Report Listing

Looking for a property?

  • Top listings
  • Investment
  • Development
  • Personal home
  • Price reports
  • Suburb reports

Do you own a property?

  • Place a free listing
  • Services for private advertisers
  • Guide to selling your home
  • Insurance
  • Improve the photos of your listing
  • Value your property for free

Are you a real estate proffesional?

  • Publish your agencies properties
  • Already a client? Log into your account
  • Advertising on Australian Real Estate
  • Australian Real Estate data technology for property insights
  • Real Estate courses